लुगाओ द्वारा निर्मित GW13 श्रृंखला ट्रांसफार्मर न्यूट्रल पॉइंट गैप ग्राउंडिंग प्रोटेक्शन डिवाइस को ट्रांसफार्मर न्यूट्रल पॉइंट के इन्सुलेशन को लाइटनिंग ओवरवॉल्टेज, स्विचिंग ओवरवॉल्टेज और पावर फ़्रीक्वेंसी (क्षणिक) ओवरवॉल्टेज से बचाने के लिए डिज़ाइन किया गया है। लुगाओ के पास पेशेवर उत्पादन उपकरण और समृद्ध निर्यात अनुभव है, और रखी गई इन्वेंट्री को जल्दी से वितरित किया जा सकता है।
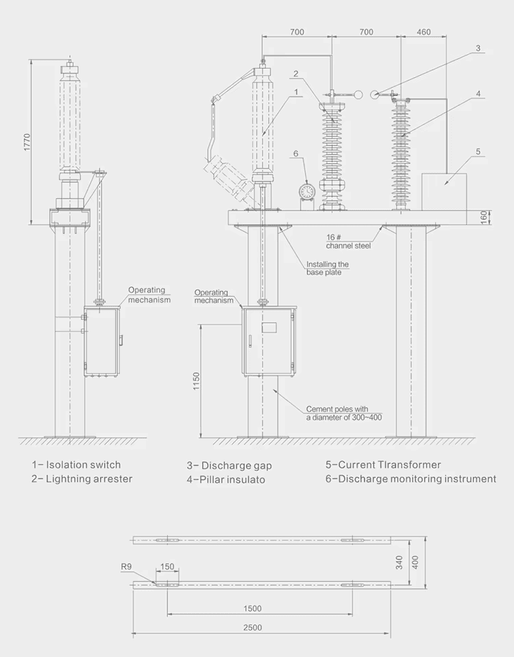
लुगाओ के GW13 श्रृंखला ट्रांसफार्मर न्यूट्रल पॉइंट ओवरवॉल्टेज प्रोटेक्टर मुख्य रूप से 110kV और 220kV पावर ट्रांसफार्मर के न्यूट्रल पॉइंट सर्किट में उपयोग किए जाते हैं। वे ट्रांसफार्मर के न्यूट्रल पॉइंट इंसुलेशन को ओवरवॉल्टेज क्षति से बचाते हैं और ट्रांसफार्मर को ग्राउंडेड और अनग्राउंडेड न्यूट्रल पॉइंट ऑपरेशन मोड के बीच स्विच करने में सक्षम बनाते हैं। जब बिजली, बिजली आवृत्ति और स्विचिंग ओवरवॉल्टेज के खिलाफ एक साथ सुरक्षा की आवश्यकता होती है, तो सुरक्षा के लिए एक गैप और अरेस्टर को समानांतर में जोड़ा जा सकता है। GW13 श्रृंखला न्यूट्रल पॉइंट ओवरवॉल्टेज प्रोटेक्टर एक पूर्ण सेट है जो एक डिस्कनेक्टर, जिंक ऑक्साइड अरेस्टर, डिस्चार्ज गैप और करंट ट्रांसफार्मर को एकीकृत करता है। इसमें उच्च तापीय क्षमता और उत्कृष्ट सुरक्षा, लचीला विन्यास और उपयोग में आसानी है। उपयोगकर्ता की जरूरतों को पूरा करने के लिए शुद्ध गैप डिजाइन या डिस्कनेक्टर और डिस्चार्ज गैप के संयोजन का चयन किया जा सकता है।
GW13 सुरक्षा उपकरण तकनीकी विशिष्टताएँ
| लेफ्टिनेंट |
इकाई |
तर्क |
||
| उत्पाद मॉडल |
|
लुगाओ-gw13-110 |
लुगाओ-gw13-220 |
|
| रेटेड वोल्टेज |
के.वी |
110 | 220 | |
| ट्रांसफार्मर तटस्थ वोल्टेज का सामना करता है |
बिजली पूर्ण और कट झेलने वाली वोल्टेज (पीक) |
के.वी |
250 | 400 |
| 1 मिनट बिजली आवृत्ति (प्रभावी मूल्य) |
के.वी |
95 | 200 | |
| तटस्थ पृथक्करण स्विच |
वर्तमान मूल्यांकित |
A | 630 | 630 |
| संचालन तंत्र |
|
CS14G (मैनुअल) या CJ2 (इलेक्ट्रिक) |
||
| जिंक ऑक्साइड बन्दी |
रेटेड वोल्टेज (आरएमएस) |
के.वी |
72 | 144 |
| सतत संचालन वोल्टेज |
के.वी |
58 | 116 | |
| डीसी 1एमए संदर्भ वोल्टेज |
के.वी |
103 | 205 | |
| बिजली आवेग धारा का अवशिष्ट वोल्टेज |
के.वी |
186 | 320 | |
| डिस्चार्ज गैप |
गैप इलेक्ट्रोड दूरी सीमा |
मिमी | 90-150 | 220-320 |
| पावर फ़्रीक्वेंसी डिस्चार्ज वोल्टेज रेंज |
के.वी |
50-83 | 100-166 | |
| 1.2/50us आवेग निर्वहन वोल्टेज |
के.वी |
120-190 | 250-320 | |
| र्तमान ट्रांसफार्मर |
प्रकार |
|
एपॉक्सी राल पूरी तरह से संलग्न स्तंभ प्रकार 10kv डाला गया |
|
| परिवर्तन अनुपात |
|
100/5,200/5,300/5.40015.50015.600/5 |
||
